التصميم الكهربائي
يُعد التصميم الكهربائي جزءاً رئيسيًا في أي مشروع هندسي، حيث يُساهم في ضمان السلامة والأداء الفعّال لمنظومة الكهرباء داخل المبنى، لذا من خلال مكتبنا سدول للاستشارات الهندسية، نولي اهتماماً بالغاً بتقديم تصميمات كهربائية عالية الجودة تواكب المعايير العالمية، وتُناسب احتياجات عملائنا بدقة واحترافية، حيث يقوم فريقنا من المهندسين المتخصصين بدمج أحدث التقنيات مع التخطيط المدروس، لضمان أن يكون كل مشروع مصمماً بكفاءة وأمان تام.
التصميم الكهربائي
يُقدم مكتب سدول للاستشارات الهندسية خدمة التصميم الكهربائي كجزء من الحلول المتكاملة لتلبية احتياجات المشاريع المختلف، حيث يتميز التصميم الكهربائي بتصميم وتحليل جميع الأجهزة والأدوات الخاصة بنظام الكهرباء في المبنى، مع التركيز على توفير كفاءة وسلامة عالية في تشغيل النظام الكهربائي.
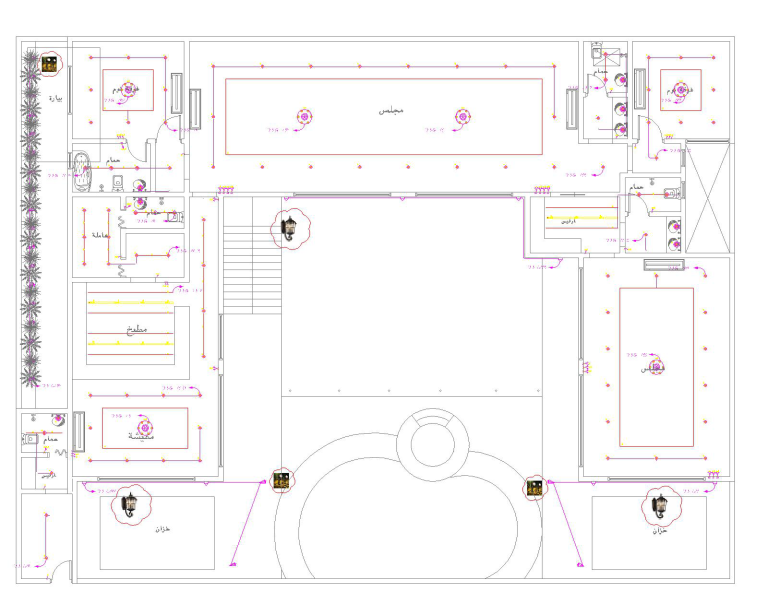
يشمل العمل تصميم لوحات التوزيع الكهربائية، وتصميم وتوزيع نظم الكهرباء والإضاءة بشكل احترافي، بما في ذلك خطوط نقل الطاقة الكهربائية، والإضاءة الداخلية والخارجية، بالإضافة إلى توزيع الأفياش ومفاتيح الإنارة بدقة تتناسب مع متطلبات كل مشروع، ويتولى مهندسونا المدربون تصميم أنظمة آمنة وعملية، تلائم احتياجات المشروع وتحقق الأداء الأمثل.
مميزات خدمة التصميم الكهربائي من سدول
تُعد خدمة التصميم الكهربائي جزءاً لا يتجزأ من الخدمات الهندسية المتكاملة التي يُقدمها مكتب سدول للاستشارات الهندسية، حيث نسعى من خلال هذه الخدمة إلى تحقيق أعلى مستويات الأمان والكفاءة في تصميم وتوزيع الأنظمة الكهربائية، بما يضمن تلبية احتياجات العملاء وتوفير بيئة مريحة وعملية، وفيما يلي أبرز مميزات خدمة التصميم الكهربائي من سدول:
تصميم أنظمة كهربائية عالية الأمان والجودة
يُولي فريق سدول اهتماماً كبيراً بتصميم أنظمة كهربائية تتماشى مع أعلى معايير الأمان والجودة، حيث يتم مراعاة كافة تفاصيل توزيع الكهرباء لضمان استمرارية العمل دون أي أعطال، كما نلتزم بتوفير بيئة آمنة ومريحة للعميل من خلال أنظمة كهربائية دقيقة.
توزيع مدروس للإضاءة و الأفياش والمفاتيح
نحرص على توزيع الإضاءة بشكل يحقق التوازن والفعالية في المساحات المختلفة، مع مراعاة سهولة الوصول إلى الأفياش والمفاتيح، حيث تضمن هذه الخدمة مستوى عالٍ من الراحة للعملاء وملاءمةً وظيفية تلبي احتياجاتهم اليومية بكفاءة.
استخدام أحدث التقنيات في التصميم الكهربائي
نستخدم في سدول تقنيات حديثة في التصميم الكهربائي، مما يُتيح توفير حلول مبتكرة تتوافق مع تطورات المجال، وهذه التقنيات تسهم في تعزيز الكفاءة التشغيلية وتقليل التكاليف على المدى الطويل بفضل اعتماد الأنظمة المستدامة والمتطورة.
دراسة شاملة للأحمال الكهربائية لضمان كفاءة التشغيل
يقوم فريقنا بدراسة دقيقة للأحمال الكهربائية لتحديد احتياجات المبنى وضمان كفاءة النظام الكهربائي، وهذا التحليل يضمن توفير طاقة مستمرة وتقليل المخاطر المرتبطة بزيادة الأحمال، مما يجعل نظام الكهرباء يعمل بأعلى أداء.
ماذا بعد التعاقد على خدمة التصميم الكهربائي
عند التعاقد على خدمة التصميم الكهربائي مع مكتب سدول، نبدأ فوراً في تنفيذ خطوات متكاملة لضمان تقديم خدمة متميزة تتماشى مع تطلعات العميل، وتشمل هذه الخطوات التالي:
الاجتماع مع العميل لتحديد المتطلبات
يقوم فريقنا بعقد اجتماع تفصيلي مع العميل لتحديد احتياجاته الخاصة من النظام الكهربائي، بما في ذلك توزيع الإضاءة و الأفياش والمفاتيح وتفاصيل أخرى.
إعداد دراسة تحليلية للأحمال الكهربائية
يجري المهندسون دراسة شاملة للأحمال الكهربائية المتوقعة، لضمان تلبية متطلبات المشروع دون زيادة في الاستهلاك وتجنب الأحمال الزائدة التي قد تؤثر على كفاءة النظام.
إعداد مخططات التصميم التفصيلية
بعد تحليل المتطلبات والأحمال، يقوم الفريق بإعداد المخططات التفصيلية التي تشمل جميع التفاصيل الفنية اللازمة، مثل مواقع الأسلاك، توزيع الإضاءة، ونقاط التوصيل الأساسية.
التنسيق مع الأقسام الأخرى لضمان التكامل
نتعاون مع الأقسام الأخرى لضمان تكامل التصميم الكهربائي مع باقي عناصر المشروع، مما يحقق كفاءة عالية ويضمن انسجام جميع الأنظمة.
تقديم التصميم النهائي والمراجعة مع العميل
بعد الانتهاء من التصميم، نعرضه على العميل لمراجعته والموافقة عليه، مع إجراء أي تعديلات إضافية لتحقيق الرؤية المطلوبة بدقة.
لماذا سدول هو الخيار الافضل؟
تتمتع خدمات الاستشارات الهندسية من مكتب سدول بمميزات فريدة تجعلها الخيار الأمثل للعملاء الذين يسعون للحصول على
حلول هندسية متكاملة ومتميرة، إليك أبرر هذه المميرات:
فريق مهندسين مدربين على أعلى مستوى
يتكون فريقنا ف مكتب هندسى سدول من مندسين مصممين محترفين تم تدريبهم على أحدث الأساليب والتقنيات، مع توفر مصمم ف جميع المجالات لضمان تلبية جميع احتياجات المشاريع بأعلى كفاءة.
استخدام أحدث التقنيات
نطبق أحدث التقنيات في مجال الهندسة والتصميم، مما نساعد على تقديم حلول مبتكرة دون التأثير السلي على البيئة، حبث إننا نترم بأعلى معايير الجودة ف جميع مراحل العمل.
تصاميم فريدة واحترافية
نقدم ف مكتب هندسي سدول تصميمات هندسية فريدة تناسب طبيعة كل مشروع وتطلعات العميل، مع التركير على خلق مساحات عملية وحمالية تتناسب مع رؤية العميل.
إدارة ومتابعة دقيقة للمشاريع
نحرص ض مكتب هندسى سدول على إدارة ومتابعة شاملة للمشاريع. مما يضمن الوصول إلى النتائح المرغوبة في الوقت المحدد وبأعلى معايير الجودة.
الاسئلة الشائعة
ما هي خدمة التصميم الكهربائي التي يقدمها مكتب سدول؟
خدمة التصميم الكهربائي تشمل تخطيط وتصميم أنظمة الكهرباء والإضاءة في المباني، بما في ذلك توزيع الأفياش والمفاتيح، ونظم الحماية، وتصميم اللوحات الكهربائية، ودوائر الطاقة اللازمة لتلبية متطلبات العملاء بأعلى معايير الأمان والجودة.
كيف تضمن سدول سلامة التصميم الكهربائي؟
يعتمد مكتب سدول على معايير العالمية وتحليل الأحمال الكهربائية بعناية، بالإضافة إلى تنفيذ أنظمة حماية وتوزيع تُقلل السلامة من المخاطر الكهربائية وتضمن الأمان العالي في جميع مراحل المشروع.
هل يمكنني التعديل على التصميم الكهربائي أثناء العمل على تصميمه؟
نعم في سدول نمنح العملاء مرونة في إجراء التعديلات على التصميم الكهربائي، شريطة أن يتوافق التعديل مع معايير السلامة ومتطلبات البنية التحتية للمشروع.
هل تقدم سدول خدمات التصميم الكهربائي للمباني السكنية والتجارية؟
نعم، سدول توفر خدمات التصميم الكهربائي لجميع أنواع المباني، سواء كانت سكنية، تجارية، أو صناعية، مع مراعاة الاحتياجات الفريدة لكل نوع من المباني.
ما هي مدة إنجاز التصميم الكهربائي لمشروع جديد؟
تختلف مدة الإنجاز حسب حجم وتعقيد المشروع، حيث يتم وضع جدول زمني مفصل بعد دراسة احتياجات العميل والمتطلبات الخاصة بالمبنى.
هل تلتزم سدول بمعايير الكفاءة البيئية في التصميم الكهربائي؟
نعم نلتزم بتطبيق معايير الكفاءة البيئية من خلال تصميم أنظمة إضاءة وطاقة تستهلك طاقة أقل وتقلل من التأثير البيئي، مع الحفاظ على جودة الأداء.
هل يتم توفير مخططات تفصيلية للتصميم الكهربائي؟
نعم بعد إتمام التصميم، نُقدم مخططات تفصيلية تشمل توزيع الأفياش، مواقع الإضاءة، ومسارات الأسلاك، لتمكين التنفيذ الدقيق في الموقع.
هل يساعد فريق سدول في اختيار مكونات عالية الجودة للتصميم الكهربائي؟
بالطبع يسعى فريقنا دائماً لاختيار أفضل المكونات والمواد الكهربائية التي تحقق الأداء المستدام والجودة العالية، بالتعاون مع موردين موثوقين.
كيف يتم تقدير تكلفة التصميم الكهربائي؟
يتم تقدير التكلفة بناءً على حجم المشروع ومتطلبات التصميم، حيث يمكنكم التواصل معنا للحصول على استشارة لتحديد تكلفة تصميم كهربائي يناسب احتياجاتكم.
كيف يمكنني البدء في مشروع التصميم الكهربائي مع سدول؟
يمكنك البدء بالتواصل مع فريقنا وتحديد احتياجاتك الخاصة، وسيقوم مستشارونا بتقديم خطة تفصيلية تشمل مراحل التصميم و التكلفة والجدول الزمني.


